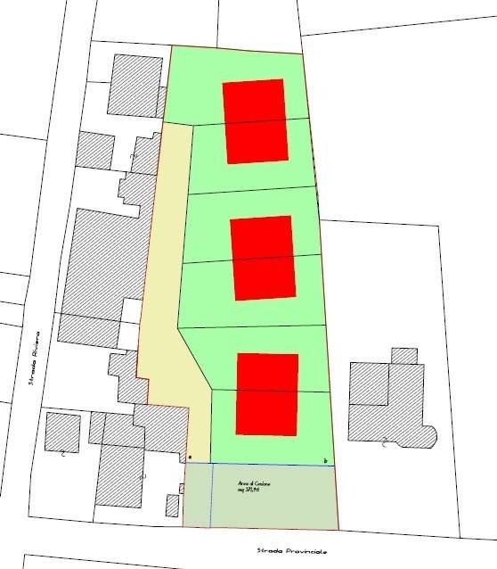
Rif: IMMO-56841440
TRAVERSETOLO
PARMA
A pochi chilometri dalla città in posizione panoramica sulle prime colline lotti per case mono e bifamiliari a partire da Euro 65.000.
