Rif: BAMu/09/25
PARMA
PARMA - zona Centro Storico
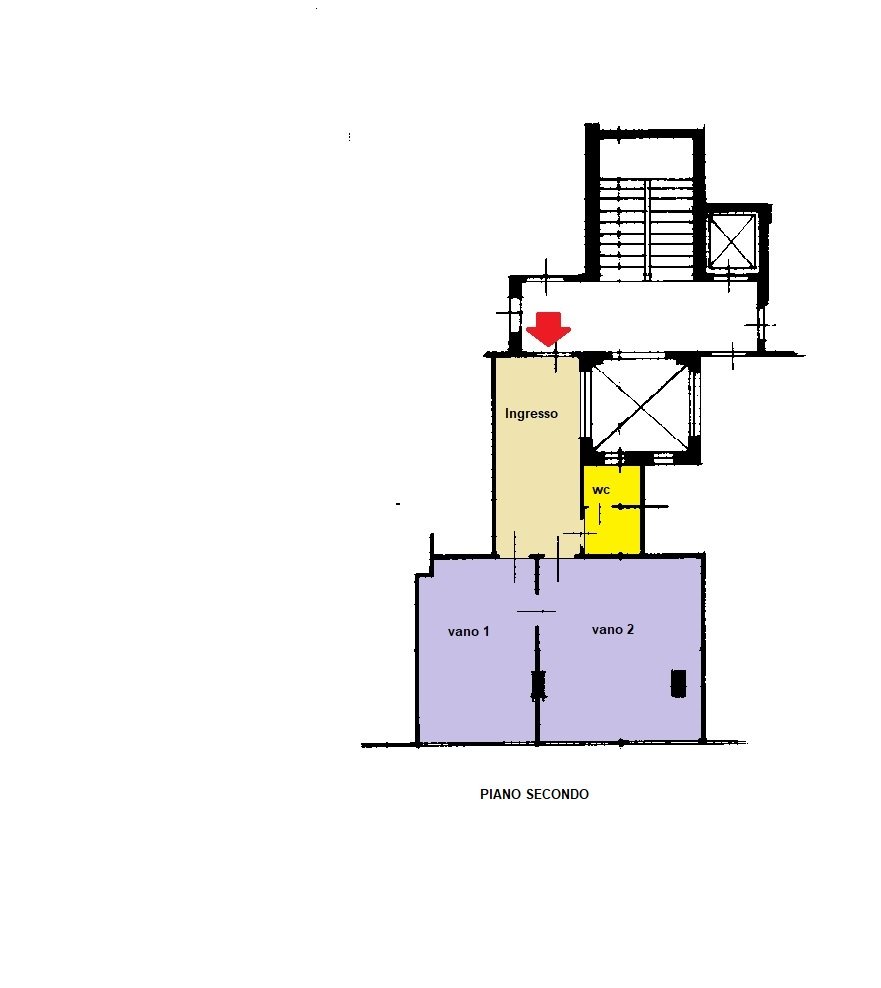
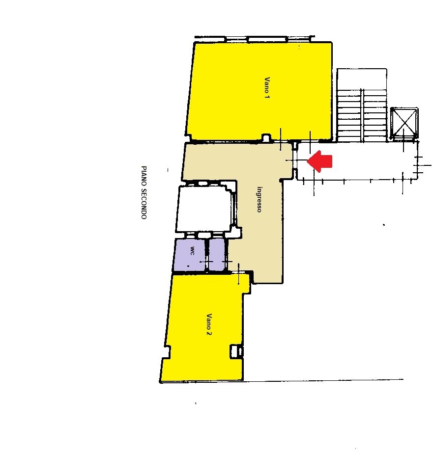
A due passi dal Duomo, nel cuore del centro storico, al secondo piano di un elegante palazzo della fine degli anni '50 dotato di ascensori e di servizio di portineria, proponiamo in vendita due unità immobiliari adiacenti ad uso ufficio accorpabili aventi una superficie totale di circa 150 mq.
Grazie ai tre ingressi indipendenti ed alla planimetria libera, le unità immobiliari offrono un'ampia flessibilità nella distribuzione degli spazi favorendo una diversificazione delle possibili soluzioni abitative.
Completano la proprietà due cantine al piano seminterrato.
Un'opportunità unica per chi cerca una residenza elegante e personalizzabile nel cuore pulsante della città.
Per informazioni e visite contattare Ilaria al 347/8894134.
Grazie ai tre ingressi indipendenti ed alla planimetria libera, le unità immobiliari offrono un'ampia flessibilità nella distribuzione degli spazi favorendo una diversificazione delle possibili soluzioni abitative.
Completano la proprietà due cantine al piano seminterrato.
Un'opportunità unica per chi cerca una residenza elegante e personalizzabile nel cuore pulsante della città.
Per informazioni e visite contattare Ilaria al 347/8894134.
Consistenze
| Descrizione | Superficie | Sup. comm. |
|---|---|---|
| Principali | ||
| Ufficio - 2° piano | 99 Mq | 99 Mqc |
| Ufficio - 2° piano | 55 Mq | 55 Mqc |
| Accessorie | ||
| Altro - piano interrato | 4 Mq | 2 Mqc |
| Altro - piano interrato | 4 Mq | 2 Mqc |
| Totale | 158 Mqc | |
